เรามีความหลงใหลในการแก้ปัญหา ที่แปลกใหม่ ที่นำวิสัยทัศน์ของคุณมาสู่ชีวิต
การออกแบบห้องทำความสะอาดตามระเบียบไม่ว่า จะเป็น GMPGTP การผลิตทางคลินิก หรือการประกอบยาต้องใช้ความเชี่ยวชาญเฉพาะทางการวางแผนอย่างระมัดระวัง และการจัดตำแหน่งตามมาตรฐานอุตสาหกรรม ที่เข้มงวด ทีมวิศวกรสถาปนิกผู้เชี่ยวชาญด้านการผลิตยา และผู้เชี่ยวชาญด้านห้องทำความสะอาดได้รับการรับรองว่า ไม่ตรงกันในทุกขั้นตอนของการออกแบบห้องสะอาดการรับประกันการรับรองการรับประกันการรับรองการออกแบบห้องทำความสะอาดการรับประกัน และการดำเนินงานเชื่อมโยงการออกแบบสิ่งอำนวยความสะดวกกับคลินิก และกฎระเบียบความต้องการ ที่ขับเคลื่อนโครงการ ที่ประสบความสำเร็จ ตั้ง แต่การวางแผนก่อนไปจนถึงการดำเนินงานระยะยาวเราช่วยให้องค์กรวิทยาศาสตร์ชีวิตตอบสนองคุณภาพของผลิตภัณฑ์ ที่ยากความปลอดภัย และความต้องการการปฏิบัติตามผ่านการออกแบบห้องสะอาดอัจฉริยะ ด้านล่างนี้ เรารวมโซลูชั่นแบบเต็มสเปกตรัมของเราด้วยคู่มือการออกแบบทีละขั้นตอนเพื่อการออกแบบ ที่มีประสิทธิภาพการควบคุมห้องทำความสะอาดพร้อม - ทำให้กระบวนการในขณะ ที่เน้นปัจจัยทางเทคนิค และการปฏิบัติตาม ที่สำคัญ
ทำความสะอาดห้องความเชี่ยวชาญตอนนี้ การแก้ปัญหาแบบบูรณาการ
เราเสนอการสนับสนุนจากต้นทางถึงปลายทางสำหรับห้องทำความสะอาดทั่วอุตสาหกรรมไลฟ์วิทยาศาสตร์พร้อมโซลูชัน ที่ปรับให้ตรงกับมาตรฐานการกำกับดูแล และความต้องการการปฏิบัติการ ที่พัฒนาขึ้น ทีมงานบูรณาการของเราสนับสนุนทุกขั้นตอนของการออกแบบห้องทำความสะอาดการรับจ้าง และการดำเนินงานส่งมอบผลลัพธ์ ที่สอดคล้องกับทั้งประสิทธิภาพทางเทคนิค และข้อกำหนดด้านกฎหมาย ไม่ว่า คุณจะต้องปรับปรุงห้องทำความสะอาด ที่มีอยู่ หรือสร้างหนึ่งตั้ง แต่เริ่มต้นความเชี่ยวชาญของเราให้แน่ใจว่า การออกแบบห้องสะอาดของคุณตรงกับประสิทธิภาพทั้งหมด และเป้าหมายการปฏิบัติตาม
เราออกแบบ และสร้างห้องทำความสะอาด ที่สอดคล้องกับ 21 CFR ส่วน 210211212 และ 1271 รวมถึงข้อกำหนด HCT / P และระบบ ที่มีคุณภาพสำหรับการทดลองทางคลินิก และส่วนประกอบสำคัญเชิงพาณิชย์ของการออกแบบห้องทำความสะอาด วิธีการของเราเพื่อให้แน่ใจว่า ทุกแง่มุมของการออกแบบของคุณยึดติดกับกฎระเบียบ ที่เข้มงวดเหล่านี้
เราช่วยให้ลูกค้าออกแบบ และขยายห้องทำความสะอาดเพื่อสนับสนุนความต้องการการผลิต ที่เพิ่มขึ้นในขณะ ที่รักษาการปฏิบัติตาม โซลูชั่นการออกแบบห้องสะอาด ที่ยืดหยุ่นของเราให้คุณปรับขนาดโดยไม่ต้องเสียสละคุณภาพ
ผู้เชี่ยวชาญด้านการแพทย์ และผู้เชี่ยวชาญด้านยาในการนำระบบการส่งมอบยา และชีวภาพใหม่มาสู่ตลาดผ่านการประเมินความเสี่ยงการออกแบบวิศวกรรมการวางแผนโครงการ และคำแนะนำด้านกฎระเบียบ
เราช่วยให้ร้านขายยา และศูนย์ดูแลสุขภาพเป็นไปตามมาตรฐาน ที่ทบทวนกันโดยการทบทวนการควบคุมทางวิศวกรรม และการบริหารการทำงานการประเมินสิ่งแวดล้อม และการจัดทำการประเมินช่องว่า ง และแผนปฏิบัติการ
ทีมวิสทีมสร้าง และปรับปรุงการดำเนินการทบต้นเพื่อตอบสนองความต้องการขององค์การอาหาร และยา และความต้องการของรัฐ นอกจากนี้ เรายังให้การฝึกอบรมพนักงานเกี่ยวกับเทคนิคการบำบัดด้วยการฆ่าเชื้อโรคการจำนำระบบ HVAC การตรวจสอบสิ่งแวดล้อม และอื่น ๆ อีกมากมาย
การออกแบบ และคณะกรรมาธิการสายไฟสิ่งอำนวยความสะดวกธนาคารเลือดด้วยการมุ่งเน้นไป ที่การทำงาน ที่สอดคล้องกับ fda การควบคุมคุณภาพการก่อสร้างการทำงาน ที่สำคัญซ้ำซ้อนระบบ ที่สำคัญ และขั้นตอนการตรวจสอบสิ่งแวดล้อม
ผู้เชี่ยวชาญชาววิสทีมประเมิน และลดความเสี่ยงในการเปิดรับแสง HD ผ่านการตั้งค่าการดูแลสุขภาพ ปฏิบัติตามร้านขายยาการพยาบาล และสถาน ที่ปฏิบัติการพร้อมคำแนะนำจากผู้เชี่ยวชาญด้านอาชีพสุขภาพ และพิษวิทยาของเรา
เราให้บริการเต็มรูปแบบตั้ง แต่การวางแผน และการออกแบบไปจนถึงช่องว่า งแบบแยกส่วน/มือถือการรับประกัน และสารคดี ที่สร้างขึ้นตาม ที่ทำให้ห้องทำงานของคุณทำงานได้อย่างมีประสิทธิภาพเครื่องชั่งได้ง่าย และยังคงมีความยืดหยุ่นตลอดทุกขั้นตอนของการออกแบบ และการก่อสร้าง วิธีการจากต้นทางถึงปลายทางของเรากำจัดช่องว่า งในการออกแบบของคุณสำหรับสิ่งอำนวยความสะดวก ที่มีประสิทธิภาพมากขึ้น
ทีมของเราดำเนินการอุปกรณ์ IQ / OQ รับรองห้องสะอาด ISO และการควบคุมคุณภาพอย่างต่อเนื่อง เราช่วยแนะนำการดำเนินงานอย่างต่อเนื่องผ่านการตรวจสอบคณะกรรมการตรวจสอบสิ่งแวดล้อม และการตรวจสอบการตรวจสอบบัญชี
ในขณะ ที่& quot ; easy & quot ;อาจไม่ได้เป็นคำแรก ที่เข้ามาในใจเมื่อการออกแบบห้องทำความสะอาด ที่ละเอียดอ่อนตรรกะวิธีการขั้นตอนทีละขั้นตอนสร้างการออกแบบห้องสะอาด ที่มั่นคง และสอดคล้องกัน ด้านล่างนี้ เป็นรายละเอียดการสลายของ แต่ละขั้นตอน ที่สำคัญรวมถึงเคล็ดลับการปฏิบัติสำหรับการปรับโหลดการคำนวณเส้นทางการวางแผนการหลบหนี และการจัดสรรห้องเครื่องกลพื้น ที่ทั้งหมดสอดคล้องกับความเชี่ยวชาญของเราในการปฏิบัติตามกฎระเบียบ และประสิทธิภาพ กรอบนี้ ครอบคลุมปัจจัยสำคัญ เช่น การไหลของวัสดุ/การจัดประเภทความสะอาด และการออกแบบระบบกลช่วยให้คุณหลีกเลี่ยงความผิดพลาดทั่วไป และสร้างห้องทำความสะอาด ที่ตรงตามความต้องการประสิทธิภาพ และการกำกับดูแล

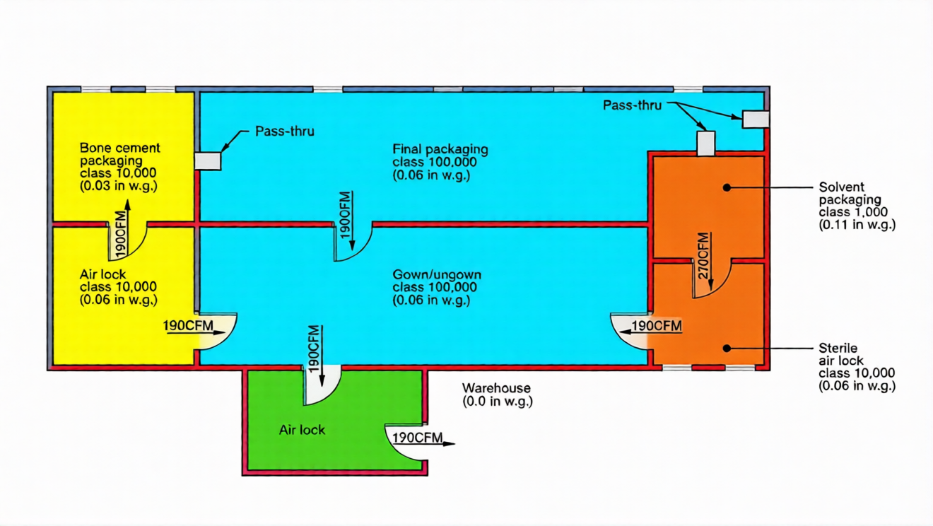
พนักงานทำความสะอาดห้องเป็นแหล่ง ที่มา ที่ใหญ่ ที่สุดของการปนเปื้อนดังนั้น การรักษากระบวนการ ที่สำคัญออกจากประตูบุคลากร และทางเดินเป็นกุญแจสำคัญในการออกแบบห้องทำความสะอาด ที่ดี พื้น ที่สำคัญควรมีจุดเข้าถึงหนึ่งจุดเพื่อหลีกเลี่ยงการเป็นเส้นทางไปยังพื้น ที่สำคัญน้อยลงการพิจารณาเลย์เอาต์ ที่สำคัญ นอกจากนี้ คุณยังต้องตรวจสอบอย่างละเอียดสำหรับการปนเปื้อนของกระบวนการรวมถึงการไหลเข้าของวัตถุดิบการแยกวัสดุ และการไหลออกของผลิตภัณฑ์สำเร็จรูป ตัวอย่างเช่น ในโรงงานซีเมนต์กระดูกช่องว่า ง ที่สำคัญ เช่น & quot ;บรรจุสารละลาย& quot ; และ& quot ;มีจุดเข้าถึงเดียวกับ airlock ( เช่น & quot ; และ& quot ;พื้น ที่) ทำหน้า ที่เป็นบัฟโฟน ที่มีการจราจรสูงลดการปนเปื้อนความเสี่ยง และการปรับปรุงการออกแบบโดยรวม

คู่มือหลักสำหรับการจัดหมวดหมู่ความสะอาดเป็นมาตรฐาน i 644-1 ซึ่งกำหนดชั้นเรียน (1,10,100,100,10,000,100,000) ขึ้นอยู่กับการอนุญาตให้นับ ที่ขนาด ที่แตกต่างกัน - ส่วนสำคัญของการออกแบบห้องสะอาด ตัวอย่างเช่น ห้องทำความสะอาดห้อง 100 ช่วยให้ได้มากถึง 3,500 อนุภาค/ cu (0.1 ไมครอน และใหญ่กว่า ) 100 อนุภาค/คูณ (0.5 ไมครอน และใหญ่กว่า ) และ 24 อนุภาค/ cu (1.0 ไมครอน และใหญ่กว่า ) การเลือกชั้นเรียนขึ้นอยู่กับความไวของกระบวนการอัตรา ที่ปฏิเสธ และแนวทางการกำกับดูแล ( เช่น กฎองค์การอาหาร และยา) ที่กำหนดรูปแบบของคุณ เลือกประสิทธิภาพสมดุล และค่าใช้จ่ายของชนชั้น ที่เหมาะสม
กฎสำคัญสำหรับการออกแบบห้องสะอาด: ช่องว่า งเชื่อมต่อไม่ควรมีความแตกต่างขนาดมากกว่า สอง อันดับในการจำแนกประเภท ตัวอย่างเช่น ห้องเรียน 100,000 ( iso 8) ห้องทำความสะอาดสามารถเปิดเข้าสู่ห้องเรียน 1,000 ( iso 6) ห้องสะอาด แต่ไม่ใช่ห้องเรียน 100 ( iso 5) ห้องทำความสะอาดเพื่อป้องกันการปนเปื้อน และป้องกันการปนเปื้อน ในโรงงานซีเมนต์กระดูกของเรา: & quot ;ชุดคลุม/ Ungown & quot ; และ& quot ;บรรจุสุดท้าย& quot ;เป็นคลาส 100,000 ( iso 8) ; & quot ;กระดูกซีเมนต์ล็อคอากาศ และ quot ; และ& quot ;ปลอดเชื้อ Airlock & quot ;เป็นคลาส 10,000 ( ISO 7) ; & quot ;บรรจุซีเมนต์กระดูก และ& quot ; SolventPackaging & quot ; (กระบวนการ ที่สำคัญมาก) ใช้คลาส 100 ( ISO 5) laminarflow สปอทภายในระดับ 1,000 ( ISO 6) ทำความสะอาดห้องพักทั้งหมดหลังจากการออกแบบ ที่ดี ที่สุด

การรักษาความดันอากาศ ที่เป็นบวกเมื่อเทียบกับพื้น ที่ประชิดสกปรกมีความสำคัญในการป้องกันความดัน ที่เป็นกลาง หรือเป็นลบทำให้แทบเป็นไปไม่ได้ ที่จะรักษาการจำแนกประเภท ที่สอดคล้องกัน นั่นเป็นเหตุผล ที่การควบคุมแรงดันเป็นกุญแจสำคัญในการออกแบบห้องสะอาด ผลการศึกษาแสดงความดัน ที่แตกต่าง 0.03 ถึง 0.05 ใน w . g .มีประสิทธิภาพในการลดการปนเปื้อน ความแตกต่าง ที่สูงกว่า 0.05 ใน w . g .) ให้ประโยชน์เพิ่มเล็กน้อย แต่เพิ่มค่าใช้จ่ายด้านพลังงาน และแรง ที่จำเป็นในการดำเนินการแลกเปลี่ยนประตู ที่สำคัญเพื่อพิจารณา ความแตกต่างของแรงดันสูงสุด ที่แนะนำในประตูคือ 0.1 ใน wg (ประตู 3 ฟุต x 7 ฟุตต้องใช้แรง 11 ปอนด์ในการเปิด หรือปิด) รายละเอียด ที่ทำให้การออกแบบของคุณเป็นจริง
ในโรงงานซีเมนต์กระดูกของเรา (อยู่ในคลังสินค้า ที่มีความดัน ที่เป็นกลาง 0.0 ใน wg ) : & quot ;ชุด/ ungown & quot ;มี 0.03 ใน wg ; & quot ;ล็อคอากาศซีเมนต์กระดูก& quot ;ล็อคอากาศปลอดเชื้อ& quot ; และ& quot ;บรรจุสุดท้าย& quot ;มี 0.06 ใน wg ; & quot ;บรรจุซีเมนต์กระดูก& quot ;มี 0.03 ใน wg (ด้านล่างเพื่อมีฝุ่น) ; และ& quot ;บรรจุสารละลาย& quot ;มี 0.11 ใน w . g . (ไม่มีแรงกดดันด้านโครงสร้าง ที่ต้องใช้การตรวจสอบโครงสร้าง) การตั้งค่าความดันนี้ ได้รับการปรับให้เข้ากับความต้องการของสิ่งอำนวยความสะดวก และสะท้อนให้เห็นถึงการออกแบบห้องสะอาด ที่รอบคอบ ที่ควบคุมการปนเปื้อน และการปฏิบัติจริง

การจัดประเภทความสะอาดเป็นปัจจัยหลักในการตั้งค่าการไหลเวียนของอากาศการวัดโดยการเปลี่ยนแปลงอากาศต่อชั่วโมง (การต้ม) - การพิจารณา ที่สำคัญสำหรับการออกแบบห้องสะอาด มาตรฐาน IEST 14644-4 ให้ช่วงเวลา ที่แนะนำ: ตัวอย่างเช่น ระดับ 100,000 ( ISO 8) ใช้ 15-30 การปรับขึ้นอยู่กับกิจกรรมในห้อง: การเข้าพัก ที่อยู่อาศัยต่ำห้องทำความสะอาดอนุภาคต่ำอาจใช้ 15 การในขณะ ที่การเข้าพักสูงพื้น ที่การจราจรสูงอาจต้องมีการปรับ แต่งอะไร 30 อย่าง ที่ทำให้การออกแบบของคุณมีประสิทธิภาพ ปัจจัยอื่น ๆ รวมถึงกระบวนการไอเสีย และการไหลของอากาศผ่านประตู/เปิด ซึ่งทั้งหมดจะต้องรวมอยู่ในการออกแบบของคุณ
ในโรงงานซีเมนต์กระดูกของเรา: & quot ;ชุดคลุม/ Ungown & quot ; (การจราจรสูงไม่สำคัญ) ใช้ 20 นิ้ว & quot ;ปลอดเชื้อการล็อคอากาศ และ quot ; และ& quot ;การล็อคอากาศซีเมนต์หลัก& quot ; (บัฟเฟอร์ ที่สำคัญ) ใช้ 40 นิ้ว; & quot ;บรรจุภัณฑ์สุดท้าย& quot ; (บรรจุภัณฑ์สำรอง ที่ไม่สำคัญ) ใช้การเคลือบ 20 ครั้ง & quot ;บรรจุซีเมนต์กระดูก และ& quot ;ตัวทำละลายบรรจุกระเป๋า& quot ; ( ที่สำคัญมาก ISO 6 ห้องทำความสะอาดกับ ISO 5 ฮู้ด) ใช้ 150 การเจาะ อากาศ ที่สะอาดมาจากฟิลเตอร์อากาศ ที่มีการเปลี่ยนแปลงอากาศมากขึ้นหมายความว่า อนุภาคในอากาศน้อยลงหลักการสำคัญสำหรับการประชุมมาตรฐานการจัดประเภทในการออกแบบห้องสะอาด
ห้องทำความสะอาดส่วนใหญ่มีความดันในเชิงบวกนำไปสู่การวางแผนการไหลของอากาศไปยังพื้น ที่ความดันต่ำ ที่อยู่ติดกัน และการรั่วไหลของอากาศผ่านเต้ารับไฟฟ้าติดตั้งไฟ และประตู/ผนัง/พื้นเชื่อมต่อ - ปัจจัย ที่คุณไม่สามารถเพิกเฉยต่อการออกแบบห้องสะอาด ห้องทำความสะอาด ที่ปิดผนึกอย่างดีมีปริมาณการรั่วไหล 1-2 % การรั่วไหลของการรั่วไหลของศูนย์เป็นไปไม่ได้ข้อเท็จจริง ที่ว่า จะนำทางการออกแบบในทางปฏิบัติ สำหรับการควบคุมอุปทาน/การคืน/ไอเสียคุณต้องมีความแตกต่างอย่างน้อย 10 % ระหว่า งการจัดหา และการไหลของอากาศกลับเพื่อให้วาล์วอากาศทำงานอย่างอิสระรายละเอียดทางเทคนิค ที่ช่วยให้มั่นใจในการออกแบบเสถียรภาพ การรั่วไหลของอากาศผ่านประตูขึ้นอยู่กับขนาดของประตูความแตกต่างของแรงดัน และการปิดผนึก (ปะเก็นประตูหยด) - ส่วนหนึ่งของการออกแบบห้องสะอาด ที่สมบูรณ์
ในโรงงานซีเมนต์กระดูกของเราประตู 3 ฟุต x 7 ฟุตมีการรั่วไหลของ 190 cfm ที่ 0.03 ใน w . g ความแตกต่าง และ 270 cfm ที่ 0.05 ใน w . g .การรั่วไหล ที่ไม่ได้วางแผนมักจะหลบหนีผ่านช่องว่า งผนัง และด้านบนของการไหลของผนังช่วยเพิ่มประสิทธิภาพการปิดผนึก และการไหลของอากาศในการออกแบบห้องสะอาดของคุณป้องกันการปนเปื้อน ที่ไม่จำเป็น และพลังงาน
สมดุลอากาศหมายถึง อากาศทั้งหมดเข้าสู่พื้น ที่ (อุปทาน + แทรกซึม) เท่ากับอากาศออกทั้งหมด (ไอเสีย + การกรองออก + กลับ) - หลักการพื้นฐานของการออกแบบห้องสะอาด ที่ทำให้มั่นใจว่า ประสิทธิภาพ ที่สอดคล้องกัน ตัวอย่างเช่น ในสิ่งอำนวยความสะดวกซีเมนต์กระดูกของเรา: & quot ;บรรจุ cging & quot ;มี 2,250 cfm ป้อนเข้าไป 270 cfm การรั่วไหลไปยัง& quot ;ล็อคอากาศปลอดเชื้อ& quot ; และกลับมา ที่ 1.980 cfm ; & quot ;ชุดล็อคอากาศปลอดเชื้อ& quot ;มี 290 cfm จัดหาอากาศ 270 cfm จาก& quot ;บรรจุภัณฑ์ตัวทำละลาย& quot ; 190 cfm รั่วไหลไปยัง& quot ;ชุดกาย/ชุดเสื้อกาย& quot ; และกลับมา ที่ 370 cfm ระหว่า งการเริ่มต้นเพื่อบัญชีการรั่วไหล ที่ไม่ได้วางแผนขั้นตอน ที่ปรับ แต่งการออกแบบของคุณเพื่อประสิทธิภาพ ที่ดี ที่สุด
นอกเหนือจากการไหลของอากาศ และความดันปัจจัยหลายอย่างส่งผลกระทบต่อประสิทธิภาพการทำความสะอาดห้อง และการปฏิบัติตามทั้งหมด ที่สำคัญในการปรับปรุงการออกแบบของคุณ การมองเห็นรายละเอียดเหล่านี้ สามารถลดประสิทธิภาพของห้องทำความสะอาดนำไปสู่การไม่ปฏิบัติตาม หรือไม่มีประสิทธิภาพ ด้านล่างนี้ เป็นปัจจัยสำคัญ ที่จะอยู่:
อุณหภูมิ: รักษาอุณหภูมิ 66 ° F สำหรับแรงงานความสะดวกสบาย (เนื่องจากชุด smocks /กระต่าย ที่ช่วยลดการกระจายความร้อน)
ความชื้น: ความชื้นสัมพัทธ์ ที่ดี ที่สุด ( RH ) คือ 45 % + / - 5 % เพื่อลดประจุไฟฟ้าสถิต ประจุสูงดึงดูดอนุภาค ซึ่งสามารถปล่อยได้ทันที RH ต่ำยังสร้างความเสียหายต่อวัสดุ ที่ละเอียดอ่อน
กระบวนการ ที่สำคัญมากอาจต้องใช้การไหลของลามินาร์ (ตามมาตรฐาน IESTIEST - wg - cc 006) เพื่อป้องกันการปนเปื้อนระหว่า งตัวกรอง HEPA และกระบวนการ
กระบวนการ ที่ไวต่อไฟฟ้าอาจต้องมีพื้น ที่นำไฟฟ้าสายดิน
กระบวนการ ที่แม่นยำอาจต้องการการควบคุมเสียง/การสั่นสะเทือนเพื่อรักษาความแม่นยำ
การออกแบบระบบกลขึ้นอยู่กับพื้น ที่งบประมาณกระบวนการจำแนกความสะอาดความน่าเชื่อถือต้นทุนพลังงานรหัสอาคาร และสภาพอากาศทั้งหมด ที่สำคัญในการออกแบบห้องสะอาดประสบความสำเร็จ ซึ่งแตกต่างจากระบบ A / C มาตรฐานระบบห้องทำความสะอาดต้องการอากาศมากขึ้นกว่า เพียงสำหรับความร้อน และความเย็นความแตกต่าง ที่สำคัญในการวางแผนกล การเลือกรูปแบบกลไก ที่เหมาะสมช่วยให้แน่ใจว่า การออกแบบของคุณมีประสิทธิภาพเชื่อถือได้ และปฏิบัติตาม
ห้องทำความสะอาดสามารถใช้หน่วยจัดการอากาศเดี่ยว ( AHU ) : กลับมา และอากาศภายนอกผสมกรองระบายความร้อนความชื้น และส่งไปยังเพดานแผ่นกรอง HEPA ที่มีผลตอบแทนผนังต่ำเพื่อป้องกันการหมุนเวียนใหม่ - โซลูชันกลไก ที่คุ้มค่าสำหรับการออกแบบขั้นพื้นฐาน ระบบกลับไป ที่ AHU สำหรับปรับสภาวะในขณะ ที่ส่วน ที่เหลือจะกลับไปเป็นแฟนหมุนเวียน - การตั้งค่า ที่แข็งแกร่งมากขึ้นสำหรับการออกแบบห้องทำความสะอาดขั้นสูง
ตัวกรองพัดลม ( FFUs ) - modular ตัวกรองการกรอง - เป็นทางเลือกให้กับ AHUs แบบดั้งเดิมเหมาะสำหรับห้องทำความสะอาด ISO 3 ถึง ISO 8 การครอบคลุมเพดานแตกต่างกันไปตามชั้นเรียน: 5-15 สำหรับ ISO 860-100 % สำหรับ ISO 3 หรือทำความสะอาด FFUs เพิ่มความยืดหยุ่นในการออกแบบห้องสะอาดของคุณทำให้พวกเขาเหมาะสำหรับสิ่งอำนวยความสะดวก ที่อาจจำเป็นต้องปรับขนาด หรือปรับในภายหลัง
การคำนวณความร้อน/ความเย็น ที่แม่นยำเป็นสิ่งจำเป็นสำหรับการออกแบบห้องสะอาดเนื่องจากพวกเขาให้ความสะดวกสบายของพนักงานประสิทธิภาพพลังงาน และสภาพแวดล้อม ที่สอดคล้องกัน การมองเห็นการคำนวณเหล่านี้ สามารถนำไปสู่การเสียค่าใช้จ่าย หรือไม่ปฏิบัติตาม. เพื่อให้ได้ผลลัพธ์ ที่ถูกต้องพิจารณาปัจจัยเหล่านี้ :
• สภาพภูมิอากาศอนุรักษ์นิยม (การออกแบบความร้อน 99.6 % หลอดไฟแห้ง 4 % /หลอดไฟน้ำด่างขนาดกลางการออกแบบความเย็น และหลอดไฟน้ำมันขนาด 0.4 % /การออกแบบความเย็นของหลอดไฟ
• การกรองความร้อน
• ความร้อนความชื้นความชื้น
• กระบวนการโหลด (อุปกรณ์วัสดุ)
• ความร้อนพัดลมหมุนเวียน
ห้องทำความสะอาดต้องการการสนับสนุนเชิงกล และไฟฟ้า ที่สำคัญ และทำความสะอาดชั้นเรียนพื้น ที่การสนับสนุนมากขึ้น ที่คุณต้องการนี้ เป็นกุญแจสำคัญ ที่มีผลต่อการทำงานในระยะยาว สำหรับ 1,000- sq - ft ห้องทำความสะอาด: คลาส 100,000 ( iso 8) ต้องการ 250-400 ตารางฟุตของพื้น ที่สนับสนุน; Class 10,000 ( ISO 7) ต้องการ 250-750 ตารางฟุต คลาส 1,000 ( ISO 6) ต้องการ 500-1,000 ตารางฟุต คลาส 100 ( iso 5) ต้องการ 750-1,500 ตารางฟุตพื้น ที่สนับสนุนเพียงพอในช่วงต้นของการออกแบบห้องสะอาดของคุณป้องกันคอขวด และทำให้ง่ายต่อการบำรุงรักษา และอัพเกรดสิ่งอำนวยความสะดวก
พื้น ที่สนับสนุน ที่แท้จริงขึ้นอยู่กับความซับซ้อนของ AHU ความซับซ้อนของตัวกรองขดลมพัดลมความซับซ้อนของเสียงพัดลมกลับอากาศบรรเทาอากาศความชื้นฯ ลฯ ) และจำนวนของระบบเฉพาะ (ไอเสียการไหลเวียนใหม่การไหลเวียนของน้ำเย็นไอน้ำ di / ro ) แบ่งปันพื้น ที่สนับสนุนของคุณต้องการกับโครงการสถาปนิกของคุณขั้นตอนเชิงรุกนี้ ทำให้แน่ใจว่า การออกแบบห้องสะอาดของคุณมีพื้น ที่เพียงพอหลีกเลี่ยงการเปลี่ยนแปลงค่าใช้จ่ายในภายหลัง
ห้องทำความสะอาดเป็นระบบประสิทธิภาพสูง - เมื่อออกแบบ และสร้างอย่างดีพวกเขาทำงานได้อย่างมีประสิทธิภาพ และน่าเชื่อถือ เมื่อออกแบบมาไม่ดีพวกเขามีค่าใช้จ่ายในการรักษา และมีแนวโน้ม ที่จะปฏิบัติตามความล้มเหลว ที่ทำไมการออกแบบห้องสะอาด ที่มีคุณภาพสำคัญ ความเชี่ยวชาญของทีมงานของเราในการปฏิบัติตาม GMP / GTP การผลิตทางคลินิก และการทำความสะอาดห้องปฏิบัติการคู่มือทีละขั้นตอนนี้ ช่วยให้คุณนำทางความท้าทาย และหลีกเลี่ยงความผิดพลาดทั่วไป สำหรับโครงการทำความสะอาดสองสามครั้งแรกของคุณการทำงานกับวิศวกร ที่มีประสบการณ์ ที่กว้างขวาง ( เช่น มืออาชีพ ที่ได้รับการรับรองของเรา) ขอแนะนำให้ตรวจสอบให้แน่ใจว่า มีความพร้อมตามกฎระเบียบ และประสิทธิภาพระยะยาว โปรดจำไว้ว่า ทุกรายละเอียดของการออกแบบห้องสะอาดของคุณมีส่วนร่วมความสำเร็จตั้ง แต่รูปแบบ และการจำแนกประเภทระบบกลไก และพื้น ที่สนับสนุน
ทำความสะอาดห้องเชี่ยวชาญในระบบปิดห้องทำความสะอาดระบบเพดานประตูห้องทำความสะอาด และหน้าต่าง และการพัฒนาผลิตภัณฑ์การผลิตการขายการให้คำปรึกษา และบริการ